0006_Bomen_Harrietville

_jump to graphic design _jump to TD/CD

DD -> CD

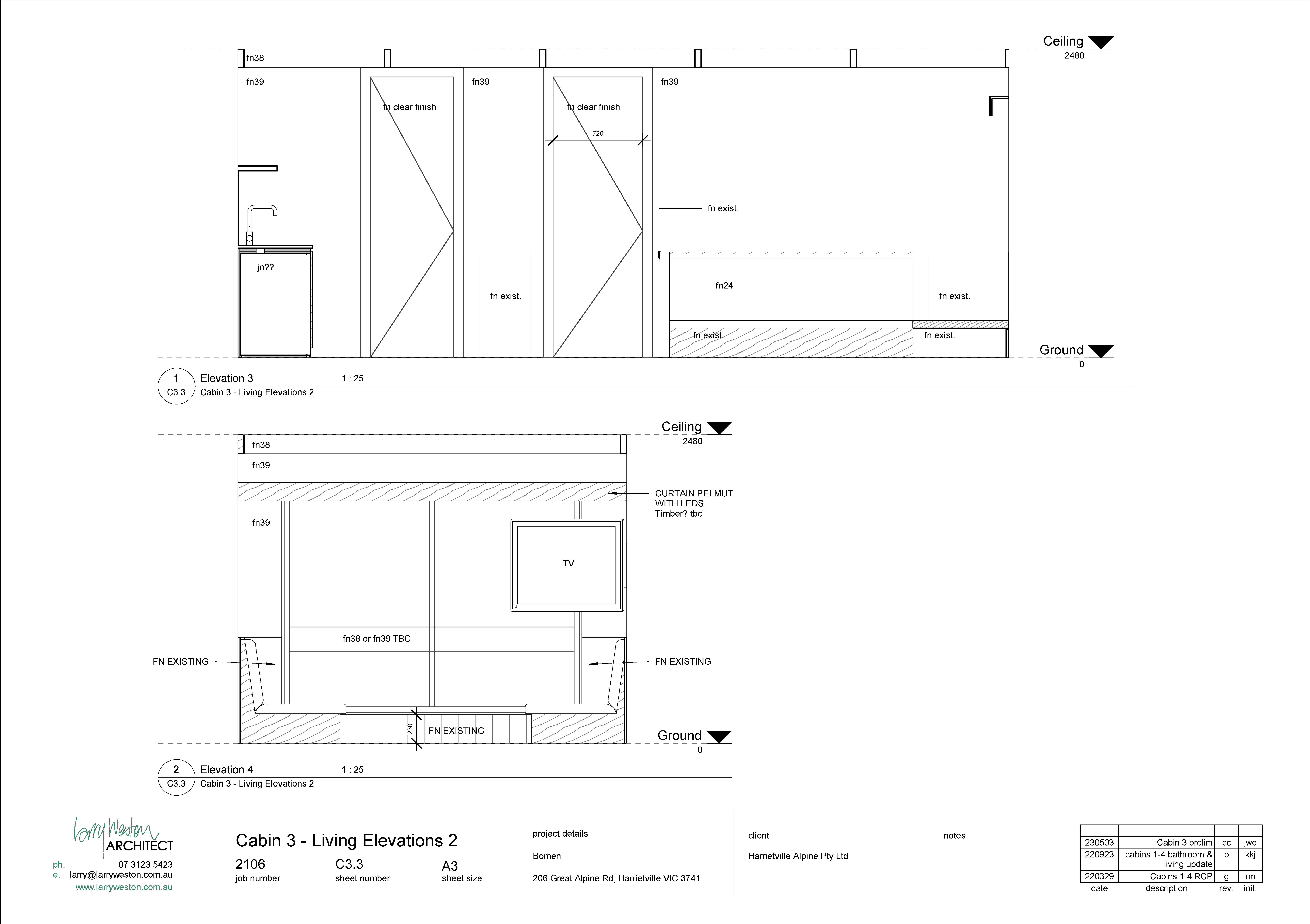
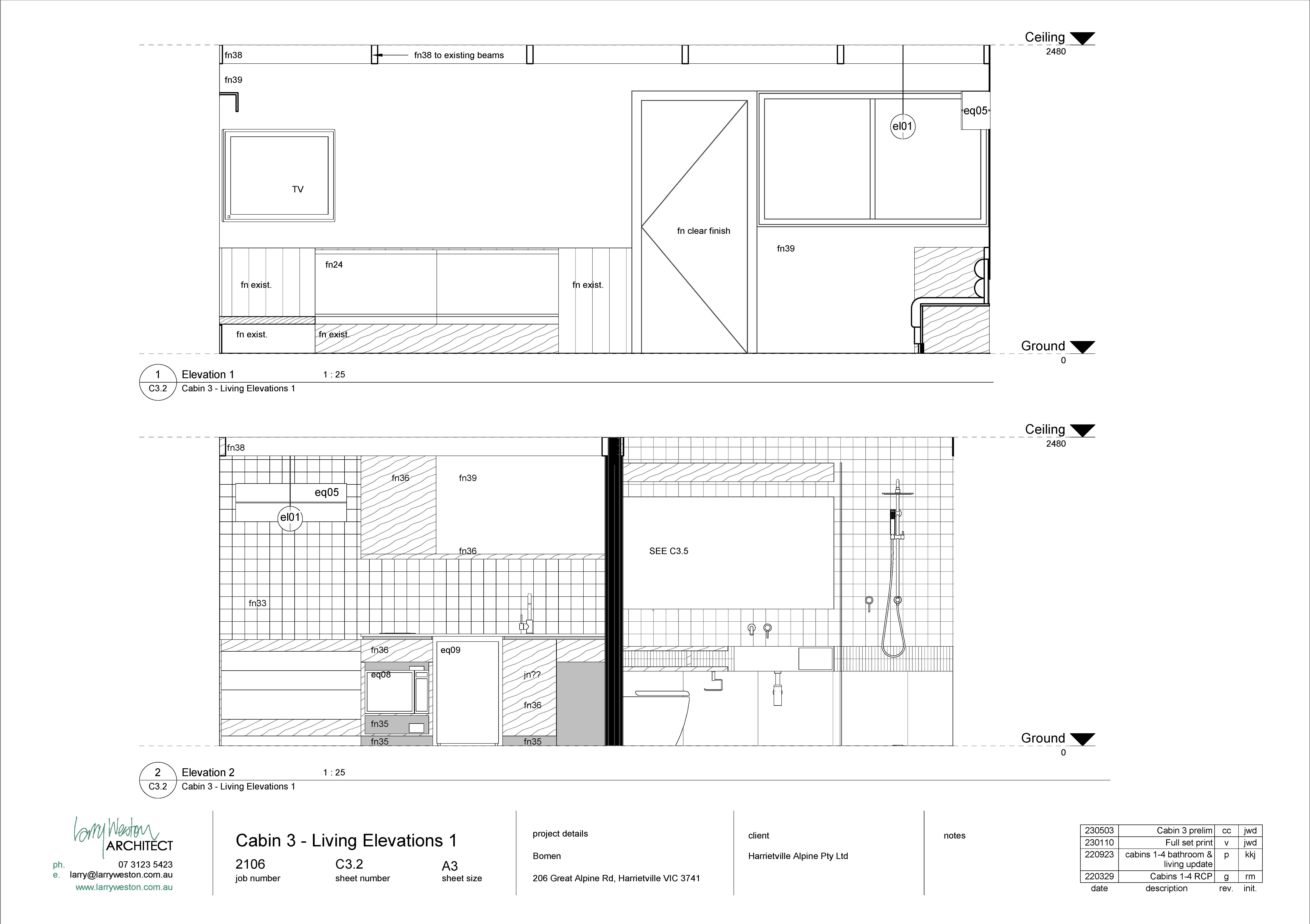
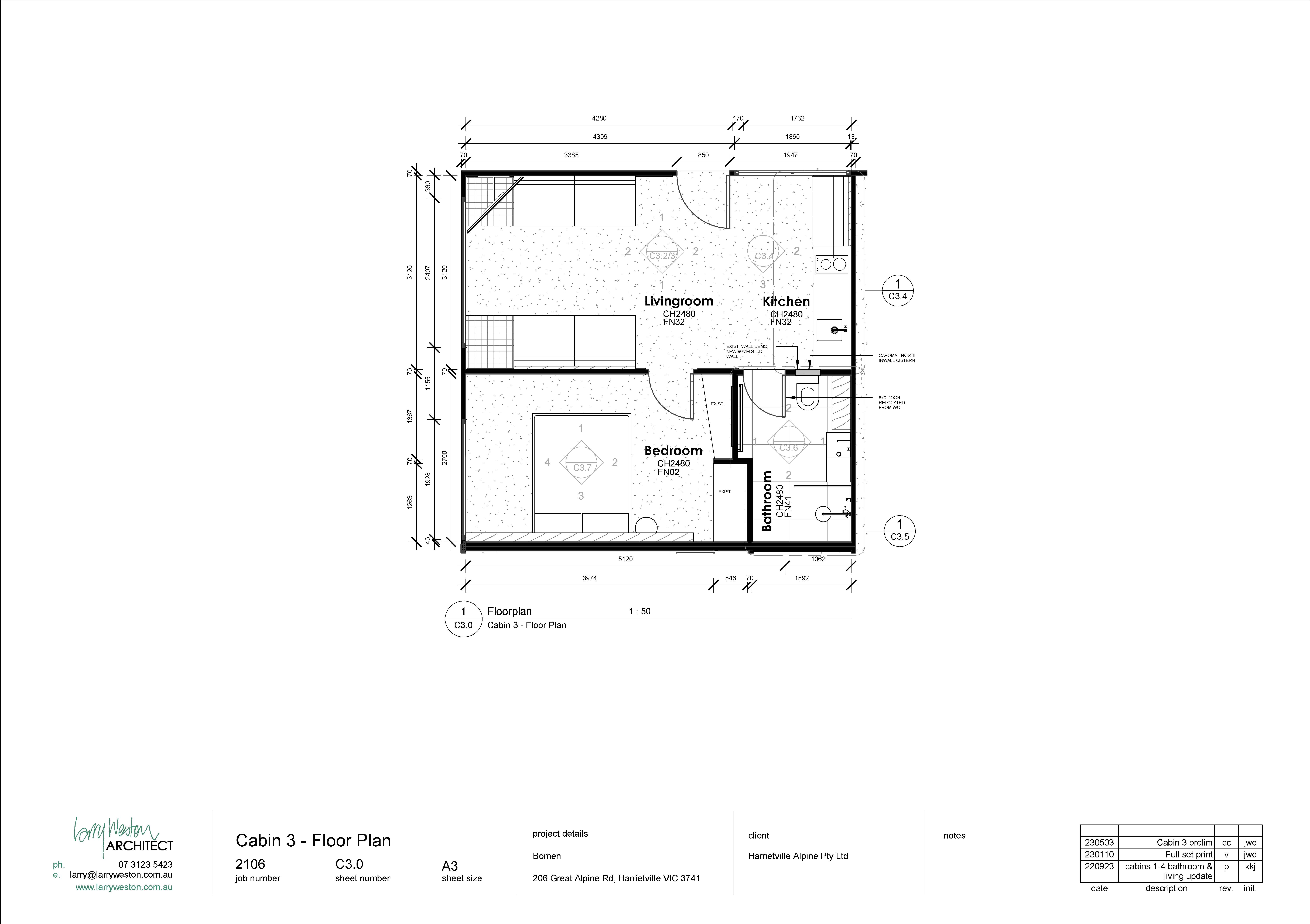
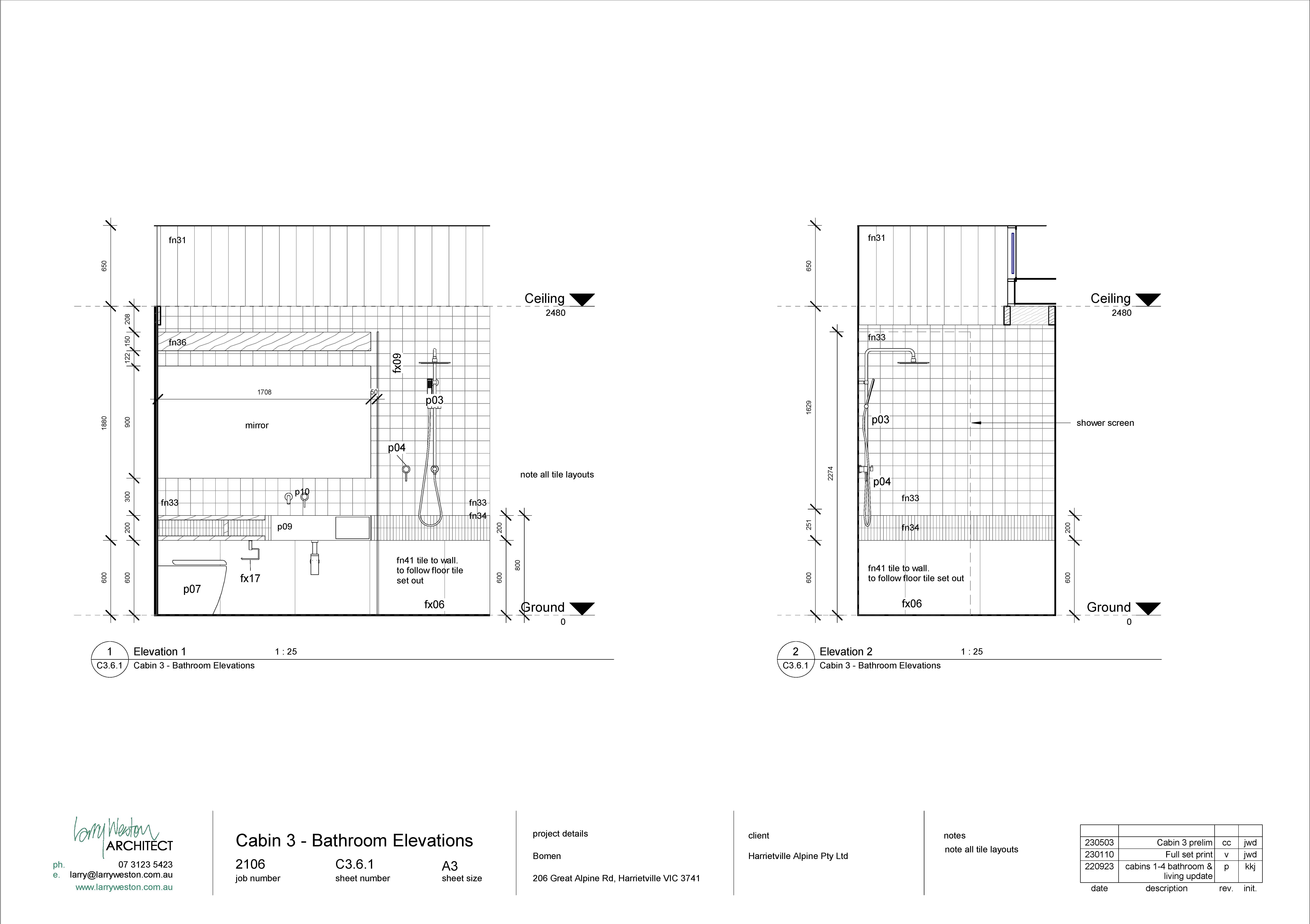
_luxury ski cabin accomodation in Harrietville VIC. Full renovation project of 12 total cabins in sets of 4 boutique styles.

_photos

_graphic design