0002_Thrills_Co

_jump to DD _jump to TD/CD

SD

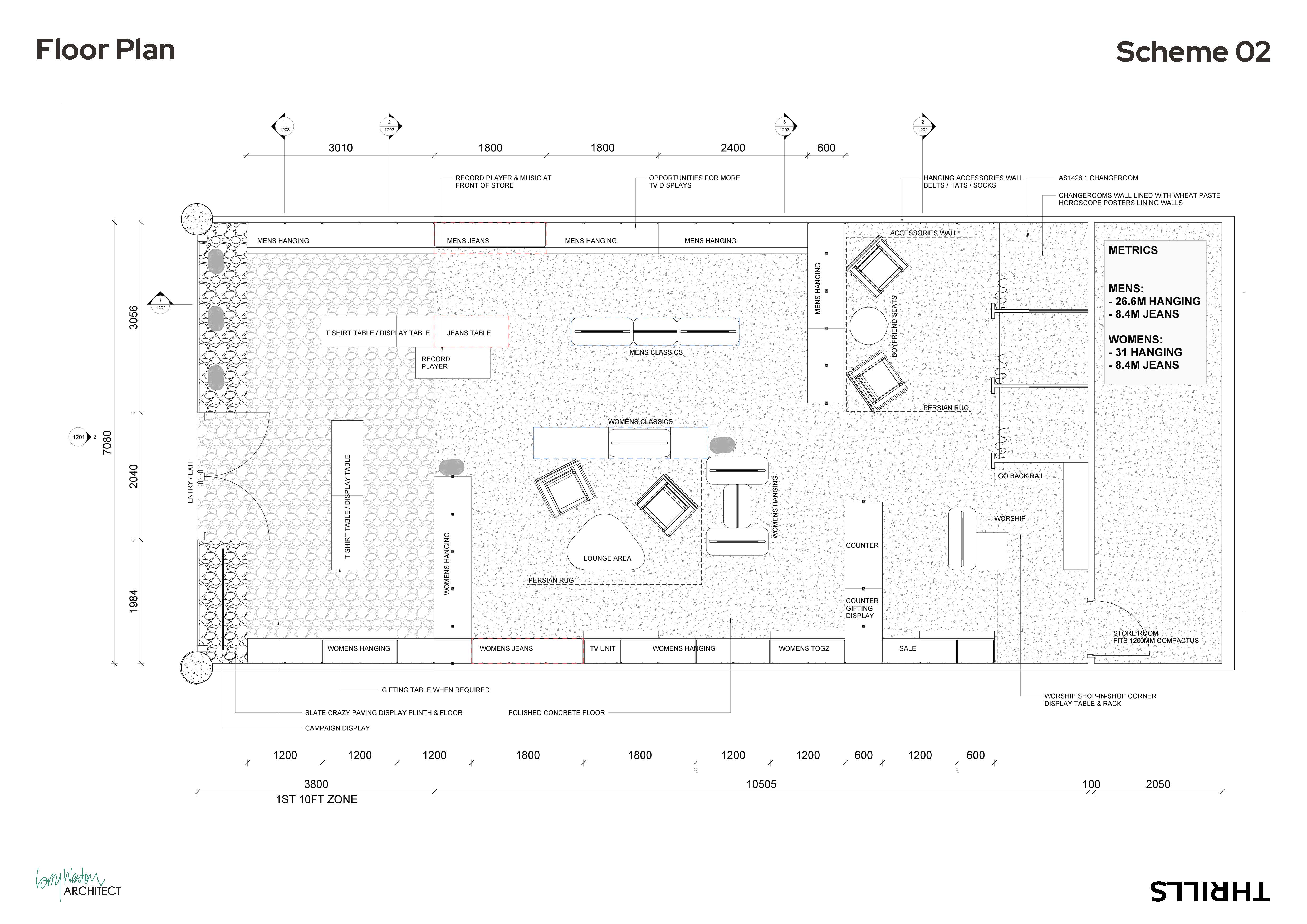
_Larry put us into an intensive design charete whereby each of us, Daria, Jasmin, and I, produced an early concept deisgn for a brand new Thrills Co store design

_Ultimately it was a choice between my scheme and Jasmins scheme, whereby it was decided that Jasmins scheme was stronger. From here we moved forward as a team developing Jasmins concept into a reality

_late stage schematic design into design development

_tender & construction

_during the tender and construction stages of Thrills Warringah, Darian (coworker) became the primary designer, with my role limited to providing support as needed. My work from the Design Development (DD) phase continued, with revisions for construction made by Darian.